Análise de Diagramas – Torção de Equilíbrio x Compatibilidade
Na análise de estruturas através dos modelos de pórtico e grelha é comum o surgimento em praticamente todas as barras de esforços de torção devido à compatibilidade de deslocamento que deve haver entre os diversos pontos da estrutura, entretanto, essa torção não é necessária ao equilíbrio e pode ser desprezada no dimensionamento da estrutura.
Chamamos essa torção de “torção de compatibilidade” e usualmente, esses esforços são desprezados através da redução da rigidez à torção das vigas (conforme aprendemos no Curso Aprendendo a Configurar o Eberick).
No entanto, há casos em que a torção é necessária ao equilíbrio da estrutura e não pode ser desprezada, como nos exemplos apresentados na sequência. Chamamos esses esforços de “torção de equilíbrio“.
- Viga engastada em outra viga;
- Laje engastada em viga;
- Viga com mudança de direção em planta.
De forma geral, um critério prático de se determinar se a torção atuante em uma viga é de torção ou de equilíbrio é analisar o diagrama de torção.
a) Se o valor da torção for constante ao longo do vão da viga, temos um caso de torção de compatibilização. Nesses casos, o valor da torção geralmente varia de um vão para outro.

b) Quando a torção tem um ponto de descontinuidade, temos um caso de torção de equilíbrio aplicado localmente na viga, no ponto de descontinuidade. Ex: Viga engastada em viga ou viga com variação de direção em planta.


Nas imagens acima vemos que há variação brusca no valor da torção nos pontos em que V26 e V29 se engastam em V13.
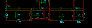
c) Quando o diagrama variar linearmente ao longo do vão, temos um caso de torção de equilíbrio aplicada uniformemente ao longo da viga. Ex: Laje engastada em viga.


Na forma, vemos que nos três primeiros vãos a laje em balanço está engastada na viga já nos dois vãos finais, a laje em balanço está engastada na laje pré-moldada adjacente. Ao olhar o diagrama, percebemos que apenas os trechos em que a laje se está engastada na viga apresentaram torção de equilíbrio.
Para aprender mais análise avançadas dos resultados dos esforços e deslocamentos das estruturas conheça nosso Curso Eberick Pórtico e Grelha.
